As a team, we created a functional and pleasing aesthetic that does not resemble a gym. It provides a comfortable environment to ensure the client has a fantastic one-on-one experience. The space is clean, but not sterile; a sense of space for patients to feel freedom in their movement. With only the constraints of codes and square footage, we were able to design a brand new welcoming space for clients.
Also includes Door & Window Schedule
Showcasing a modern receptionist desk detail to flow with the energy the facility is trying to provide.
The master bath plan was crafted to offer a luxurious experience for a couple seeking to age in place. This bathroom is now one that accommodates for ADA necessities as well as letting them experience modern amenities. This new space allows the couple to feel rejuvenated in their at home resort.
This closet would be reshaped and the linen closet removed. The encasing around the tub would also be removed to create a new focal point of the bathroom.
Turning the George Fox University library into a new space for the Art & Design Department. Making a space for Studio, Graphic, and Interior Design majors that’s updated and universal. The new studio classrooms now provide more work space for students to learn as well as give peer critiques. In creating this vision, we used softwares such as Revit, AutoCAD, and Adobe Illustrator.
The illustration shows the spacial relationship between the different rooms.
Computer space open for students to use outside of the classroom.
Inviting the art students to relax together and collaborate on current projects.
Creating a master bathroom to incorporate modern amenities needed in this midcentury modern home while maintaining elegance and sophistication.
Out with the old and in with the new crisp clean lines of modern amenities. With white cabinets, marble backsplash, all to compliment the gray’s in the hardwoods. With a focal point of black stainless steel appliances, this kitchen gives a new look to your everyday space.
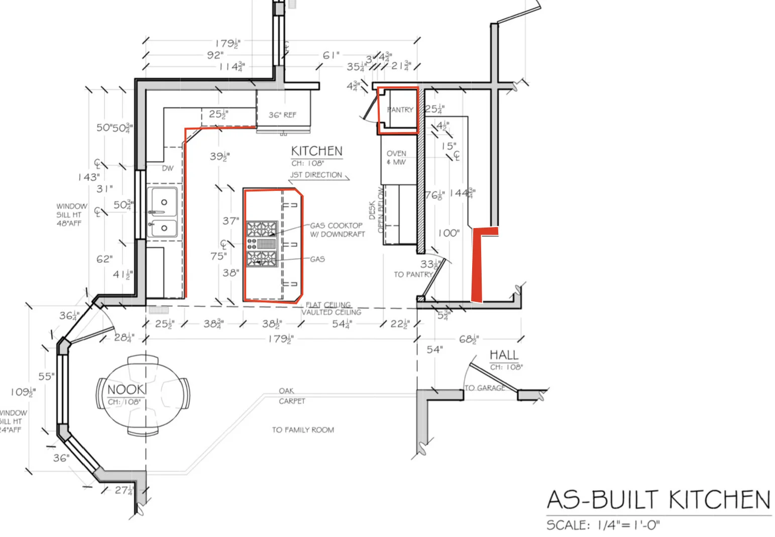
Majority of the kitchen was gutted and replaced with new cabinetry. The pantry was squared off and the door was moved to the opposite side of the space.
Not only is the new layout suitable for professional cooking but it also will entertain many.
The McCaffrey couple wanted to reinvent their home into an entertainment space now that they’re both retired. The 3rd bedroom served no real purpose. They wanted to expand the kitchen to have more prep space and to entertain, as well as adjust the entry into the master bedroom.
Living in the country, they wanted to turn their traditional style house into a farmhouse design. Using reclaimed wood and barn doors brings the farm inside.
In addition to changing the layout of some spaces, they asked me to create some interior elevations. In creating these drawings, it provides the McCaffrey couple a way of envisioning their new space with the materials they picked.
Traditional style house comes with 3 bedrooms, 2 bathrooms, and one small kitchen. There was no place to entertain comfortably.
Introducing a few furniture pieces; beds, tables, a couch, and storage cabinet.
Showcasing one side of the house to the other. Kitchen to living room, we are able to see the decor needed to feel farm fresh.
With the modern appliances coming from Thermador, this kitchen is a display for entertainment.
Installing a new shower tub and double vanity. Double round mirrors and wall sconces with plenty of storage under the vanity.